Продажа помещения свободного назначения

20 910 000 ₽

262 623 ₽ за м²

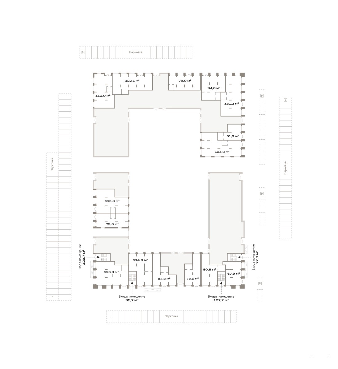
80 м²
Площадь
1/7
Этаж

Поделиться

Добавить в избранное

Помещение свободного назначения на 1 этаже, общая площадь 79.62 кв.м., без отделки. Стоимость помещения 20, 910, 000 руб., цена за кв.м 262, 622 руб.

СРОК СДАЧИ - 4 КВАРТАЛ 2025

Продается коммерческое помещение в Жилом районе «Республики 205»

9 286 человек
Перспективное количество жителей жилого района

35 000 человек
Количество жителей в шаговой доступности

7, 01 Га
Площадь застройки

447 733 м²
Площадь жилья

Проект расположен на территории бывшего завода медоборудования, в границах улиц в границах улиц Пермякова, Энергетиков, Воровского и Республики. До центра города — 10 минут на машине. Рядом — детские сады, школы. поликлиники и крупный торговый центр.

Переосмысляя бывшую производственную территорию, мы хотим создать новое место силы — микрорайон, насыщенный деловой, развлекательной, рекреационной, игровой, образовательной и медицинской инфраструктурой. Локальными центрами «Республики 205» будут общественные пространства — скверы, парки, бульвары и площади. Мы хотим создать на месте отжившей своё промышленной застройки проницаемую, открытую, понятную, современную среду.

Технические параметры:
Высота потолков от 3 метров
Отдельный вход в каждое помещение
Предусмотрено место для информационно-рекламной вывески
Витражное остекление
Инженерные коммуникации: водоотведение, канализация, вентиляция, электричество. (AQID02413668)

Дата обновления: 12 января 2026