Продажа помещения свободного назначения

33 360 000 ₽

247 533 ₽ за м²

135 м²
Площадь
1/16
Этаж

Поделиться

Добавить в избранное

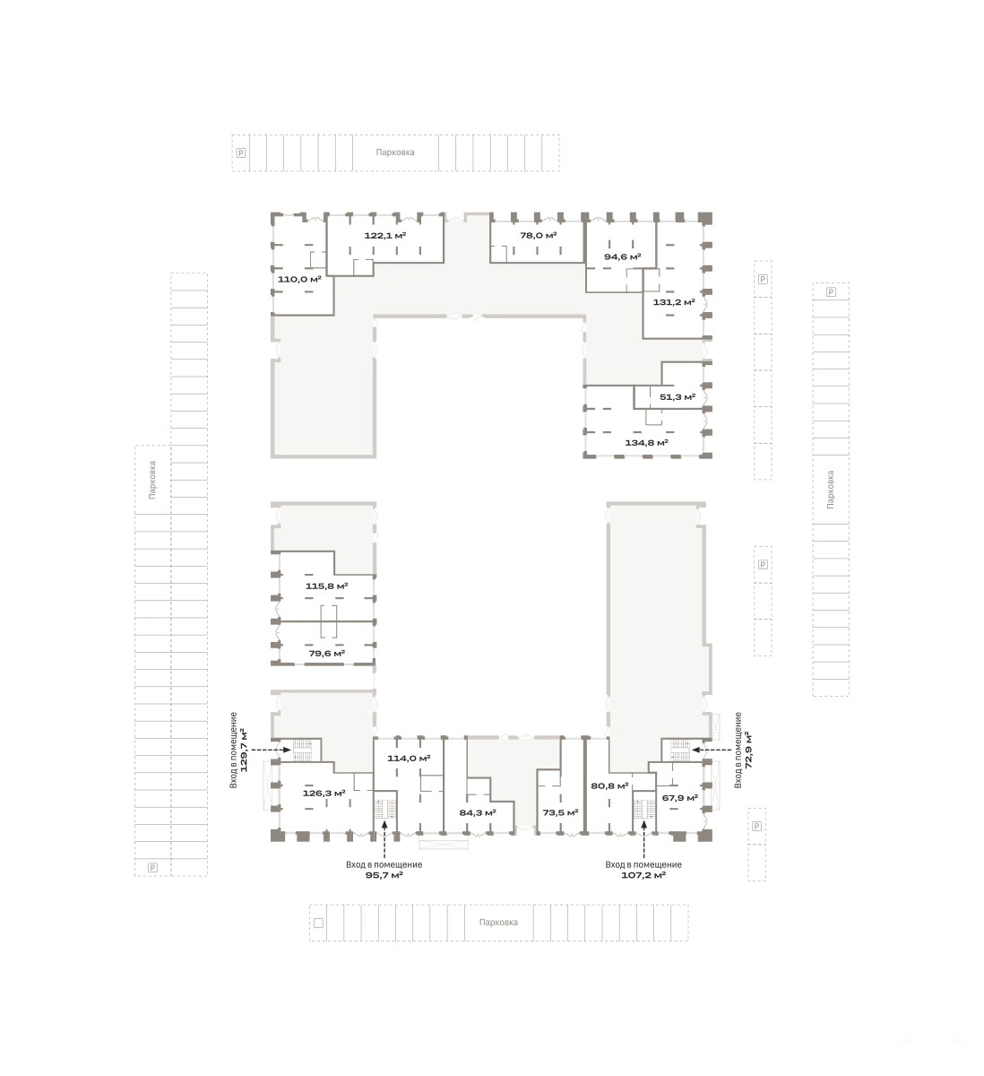
Помещение свободного назначения на 1 этаже, общая площадь 134.77 кв.м., без отделки. Стоимость помещения 33, 360, 000 руб., цена за кв.м 247, 532 руб.

СРОК СДАЧИ - 4 КВАРТАЛ 2025

Продается коммерческое помещение в Жилом районе «Республики 205»

9 286 человек
Перспективное количество жителей жилого района

35 000 человек
Количество жителей в шаговой доступности

7, 01 Га
Площадь застройки

447 733 м²
Площадь жилья

Проект расположен на территории бывшего завода медоборудования, в границах улиц в границах улиц Пермякова, Энергетиков, Воровского и Республики. До центра города — 10 минут на машине. Рядом — детские сады, школы. поликлиники и крупный торговый центр.

Переосмысляя бывшую производственную территорию, мы хотим создать новое место силы — микрорайон, насыщенный деловой, развлекательной, рекреационной, игровой, образовательной и медицинской инфраструктурой. Локальными центрами «Республики 205» будут общественные пространства — скверы, парки, бульвары и площади. Мы хотим создать на месте отжившей своё промышленной застройки проницаемую, открытую, понятную, современную среду.

Технические параметры:
Высота потолков от 3 метров
Отдельный вход в каждое помещение
Предусмотрено место для информационно-рекламной вывески
Витражное остекление
Инженерные коммуникации: водоотведение, канализация, вентиляция, электричество. (AQID02413646)

Дата обновления: 11 января 2026