Продажа помещения свободного назначения

13 810 000 ₽

195 998 ₽ за м²

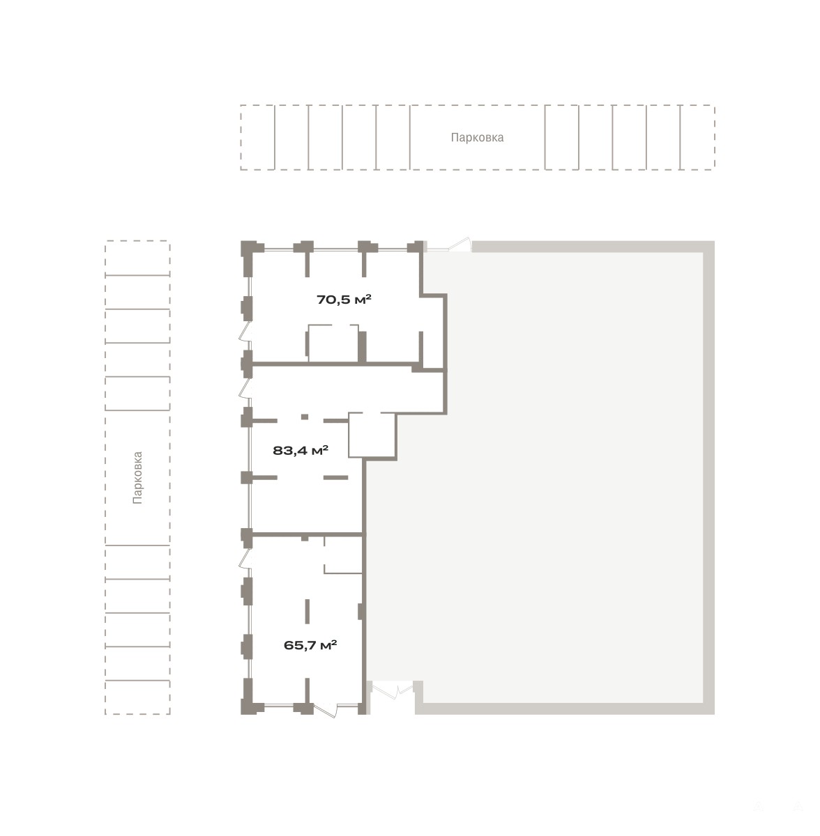
70 м²
Площадь
1/25
Этаж

Поделиться

Добавить в избранное

Помещение свободного назначения на 1 этаже, общая площадь 70.46 кв.м., без отделки. Стоимость помещения 13, 810, 000 руб., цена за кв.м 195, 997 руб.

ДОМ СДАН

Продается коммерческое помещение в Квартале «Октябрьский на Туре»

4400
Перспективное количество жителей жилого района

10000
Количество жителей в шаговой доступности

6, 5 ГА
Площадь застройки

154 000 м²
Площадь жилья

На первых этажах домов будут расположены магазины, салоны красоты, пекарни, кафе с отдельным входом, высокими потолками и витражным остеклением. Рядом с ними — гостевые парковки, зоны погрузки и разгрузки.

Район, из которого не захочется уезжать

На улицах с активным пешеходным трафиком появятся общественные пространства, скверы. Основные транзитные зоны предполагается благоустроить парклетами, навесами, летними кафе. Так мы наполним улицы возможностями для общения, сохранив их транзитную функцию.

Территория района соседствует с дамбой, которую мы благоустроим, превратив в место для прогулок и пикников. Её контуру будет вторить линейный парк с функциональным зонированием.

Вдоль всего маршрута будут сформированы точки притяжения: смотровые площадки, событийные площади, амфитеатры, зоны для спорта, йоги, пляжного волейбола, а также небольшие павильоны ритейла, где можно будет отдохнуть и перекусить во время прогулки.

Технические параметры:
Высота потолков от 3 метров
Отдельный вход в каждое помещение
Предусмотрено место для информационно-рекламной вывески
Витражное остекление
Инженерные коммуникации: водоотведение, канализация, вентиляция, электричество

Инвестировать в коммерческие помещения Брусники это обдуманный шаг для открытия собственного дела или создания арендного бизнеса с высокой доходностью. Мы проектируем наши объекты таким образом, чтобы они становились центрами притяжения для жителей района и его гостей. Благодаря удачному расположению и тщательно продуманной инфраструктуре, наши проекты привлекают большой пешеходный трафик. Это можно увидеть на примере наших реализованных проектов, таких как «Европейский», «Видный» и «Новин», где бизнесы успешно функционируют и привлекают клиентов. (AQID02434626)

Дата обновления: 5 апреля 2026