Продажа помещения свободного назначения

Тюменская область, Тюмень, Мысовская 22

24 960 000 ₽

273 056 ₽ за м²

91 м²
Площадь
1/8
Этаж

Это объявление снято с публикации.

Если это ваше объявление, восстановите его в личном кабинете или подайте новое.

В ином случае, вы можете перейти на главную или поискать другие предложения.

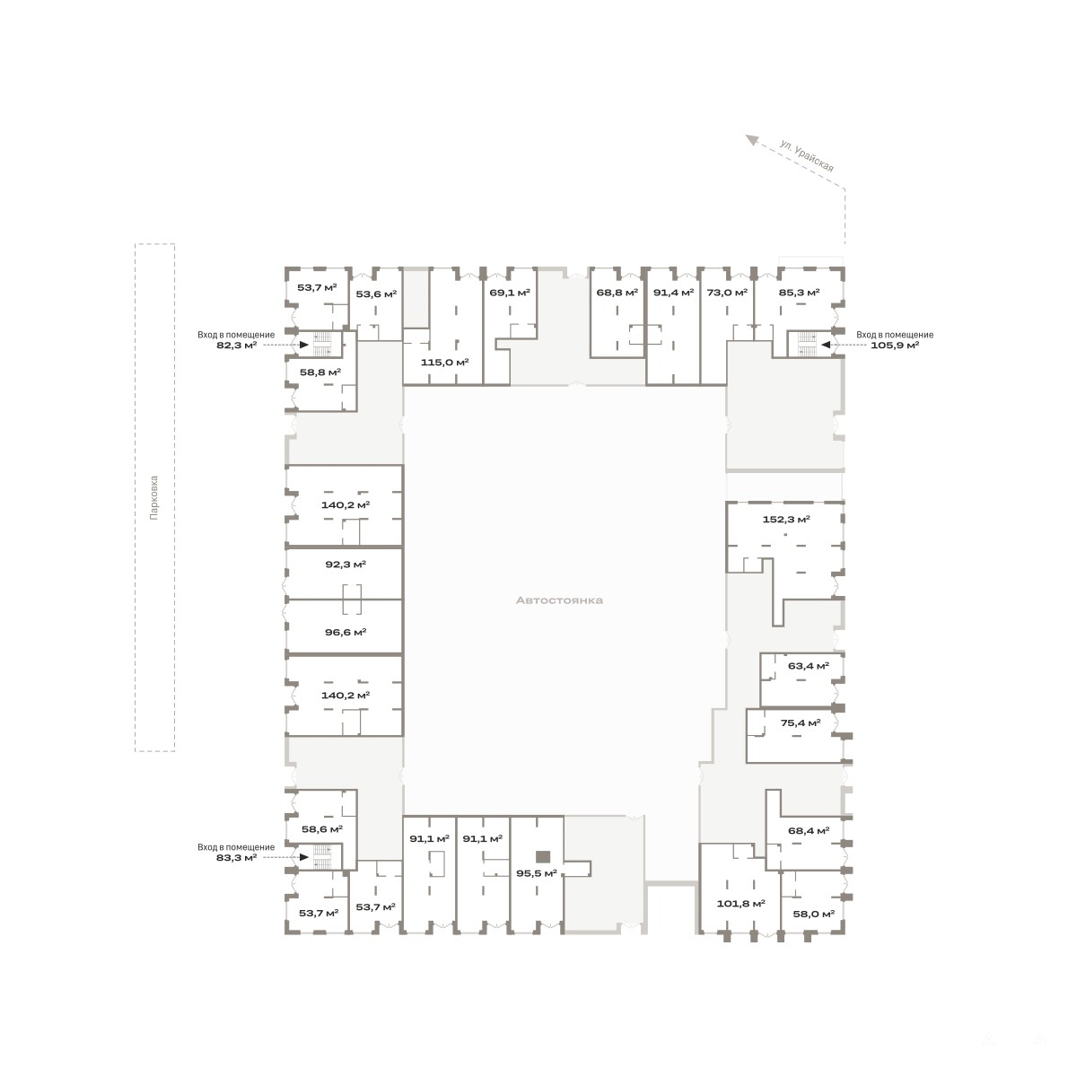
Помещение свободного назначения на 1 этаже, общая площадь 91.41 кв.м., без отделки. Стоимость помещения 24, 960, 000 руб., цена за кв.м 273, 055 руб.

Дом: 2-1
2 квартал 2029

Продается коммерческое помещение в жилом районе «Зарека»

8 000 человек
Перспективное количество жителей жилого района

35 000 человек
Количество жителей в шаговой доступности

6, 31 Га
Площадь застройки

313 600 м²
Площадь жилья

На первых этажах домов жилого района будут магазины, салоны красоты, пекарни, кафе с отдельными входами, высокими потолками и витражным остеклением. Рядом с ними — гостевые парковки, зоны погрузки и разгрузки.

Самодостаточность и городской комфорт

«Зарека» — самодостаточный район с набережной, пешеходными бульварами, насыщенный полезной инфраструктурой, в нём будет всё, что нужно современному человеку. Здесь мы построим 19 жилых домов, два детских сада и школу.

Общественные пространства

С севера на юг территорию района будет пронизывать пешеходный бульвар имени Артура Ольховского. Он станет частью большого зелёного маршрута, который соединит Зареку с другими нашими проектами — Европейским кварталом и Домом у озера. Это не просто транзитная зона по которой комфортно добраться до популярных гордских мест и остановок общественного транспорта, а точка притяжения для людей разных возрастов и интересов.

К бульвару примыкает социальная инфраструктура района: школа и детский сад. Перед школой мы спроектировали площадь с зоной для отдыха, водным объектом и садом трав.

Технические параметры:
Высота потолков от 3 метров
Отдельный вход в каждое помещение
Предусмотрено место для информационно-рекламной вывески
Витражное остекление
Инженерные коммуникации: водоотведение, канализация, вентиляция, электричество

Инвестировать в коммерческие помещения Брусники это обдуманный шаг для открытия собственного дела или создания арендного бизнеса с высокой доходностью. Мы проектируем наши объекты таким образом, чтобы они становились центрами притяжения для жителей района и его гостей. Благодаря удачному расположению и тщательно продуманной инфраструктуре, наши проекты привлекают большой пешеходный трафик. Это можно увидеть на примере наших реализованных проектов, таких как «Европейский», «Видный» и «Новин», где бизнесы успешно функционируют и привлекают клиентов. (AQID02552345)

Дата обновления: 14 апреля 2026