Продажа дома
Тюменская область, с Муллаши, ул Хабибуллы Якина
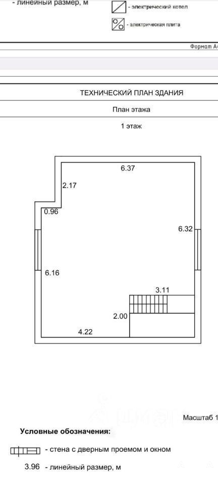
- 116 м²
- Площадь
- 60 м²
- Жилая площадь
- 30.00 м²
- Площадь кухни
- 2
- Этажность
- 6 сот
- Площадь участка
8 500 000 ₽
73 276 ₽ за м²
ID объявления 12161561
Поделиться
Добавить в избранное
Арт. 84479593. Продам новый хороший дом . Полностью готов к проживанию. Также можно использовать как дом для отдыха в камерческих целях. Все вчо на фото останется новому собственнику. Торг есть .
Дата обновления: 23 октября 2025